Daily 4x4 – a new star is born...

Den Innenausbau unseres Daily habe ich selber gemacht. Zum einen kann man so den einen oder anderen Euro sparen, zum anderen weiß man später immer genau, was man wo und wie gebaut hat - zumindest wenn man es halbwegs ordentlich dokumentiert hat. 

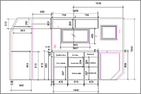
Bereits 6 Monate bevor wir das Auto geliefert bekommen haben, habe ich begonnen mich intensiv mit dem Innenausbau der Kabine zu beschäftigen. Welche Innenaufteilung ist für unsere Bedürfnisse am besten, wo soll das Badezimmer, wo die Sitzgruppe, wo das Bett und der Küchenblock eingebaut werden. Eng verbunden mit der Frage des Innenausbaus war demzufolge auch die Frage nach den Ausmaßen der Kabine. Immer wieder haben wir den Grundriss der Kabine verändert. Eigentlich sollte das Fahrzeug nicht länger als 6m werden, aber je mehr wir darüber nachgedacht haben, umso deutlicher stellen wir fest, dass uns dabei einfach ein paar Zentimeter für den Innenausbau fehlen würden. Letztendlich sind wir bei einem Kabinenaußenmaß von 3,70m und einer Breite von 2,12m gelandet, was zur Folge hat, dass das Fahrzeug eine Gesamtlänge von 6,17m hat. Die Stehhöhe innen beträgt 1,95m.

 

Innenaufteilung:

Von der Innenaufteilung haben wir nach langem Hin und Her das Badezimmer vorne quer im Fahrzeug platziert. So muss man zwar durch die Dusche ins Führerhaus steigen, aber der Platz ist auf diese Weise am besten genutzt. Das Bett wird hinten quer auf das Staufach gebaut und hat eine Länge von 2,04m und eine Breite im ausgezogenen Zustand von 1,50m.

Um es kurz zu machen – die genauen Abmessungen sind den Explosionszeichnungen zu entnehmen, die ich einem CAD Programm erstellt habe. Im Großen und Ganzen entspricht unsere Aufteilung dem Konzept der Firma Exploryx, das sich nach vielen Überlegungen immer wieder als gut erwiesen hat. 

 

Außenansicht Ansicht von oben Ansicht rechte Seite incl. Küchenblock Ansicht linke Seite incl. Sitzgruppe

 

Technik:

Nachdem die Innenaufteilung weitestgehend festgelegt war, habe ich mich intensiv mit der zu verbauenden Technik beschäftigt. Der Markt ist groß und unübersichtlich und für den Laien nicht immer leicht zu durchschauen. An dieser Stelle sei noch einmal ausdrücklich Markus Köllmayer von der Firma Exploryx gedankt, der mir immer geduldig Rede und Antwort gestanden hat und mir mit Sicherheit so einige Irrwege erspart hat.  Nachdem die wichtigsten Entscheidungen bezüglich der Technik getroffen worden waren, ging es an das Sondieren der Preise. Auch hier lohnt es sich nicht gleich beim erst besten Händler zu kaufen. Durch das Vergleichen der Preise und einiges Handeln kann man hunderte von Euros sparen (im Weiteren werde ich ein paar Empfehlungen von Händlern, mit denen ich sehr gute Erfahrungen gemacht habe, aussprechen).  Anfang Dezember konnte es dann endlich losgehen. Die Teile waren nahezu alle geliefert, die Garage war zur Werkstatt umgebaut und das Auto stand vor der Tür. 

Im Folgenden werde ich der Reihe nach ein paar Infos zu den einzelnen Bereichen geben: 

  • Wasserinstallation
     
  • Heizungsinstallation

  • Elektroinstallation

  • Gasinstallation

  • Möbelbau

         

Wasserinstallation: 

Das Thema Wasserinstallation ist alles andere als einfach. So galt es viele Dinge zu bedenken und Entscheidungen zu treffen. 

Größe des Wassertanks: 

Die Frage nach der Größe des Wassertanks war schnell beantwortet. Wir haben mir bereits über die Firma Exploryx einen Wassertank bauen lassen, der genau in die vordere Sitzbank passt und 185 Liter Wasser aufnehmen kann. Meines Erachtens sollte das reichen, da wir im Hanomag auf unserer 1 1/2 jährigen Reise gut mit 120 Litern ausgekommen sind.
 

Wasserpumpe: 

Bei der Wasserpumpe haben wir uns für ein Model der Firma Shurflo (Smart Sensor S 4905) entschieden. Auf Empfehlung haben wir eine Pumpe mit mechanischem Druckschalter gewählt, da man diese im Notfall leichter reparieren kann.

Wasserfiltersystem: 

Ich denke, dass das Thema Wasserfilter häufig ein wenig überbewertet wird. Man sollte sich grundsätzlich überlegen, was man mit dem Fahrzeug machen will. Für den europäischen Raum halte ich einen Wasserfilter für nicht wirklich erforderlich. So ist die Wasserqualität in allen europäischen Ländern doch meist so gut, dass das Wasser sogar getrunken werden kann. Wenn man Zweifel daran hat, kann man sich in jedem Supermarkt Trinkwasser kaufen.   

Anders sieht es da schon aus, wenn man außereuropäisch unterwegs ist. In manchen Regionen ist die Wasserqualität eher suboptimal und es ist schön, wenn man zumindest zum Kochen und Waschen von Obst und Gemüse sauberes Trinkwasser hat. Aus diesem Grund haben wir ein einen Wasserfilter der Firma Seagul (Untertischgerät X-1B) und den entsprechenden Vorfilter (Aquapolish 5) verbaut. Bezogen habe ich die Teile wie auch viele andere über die Firma „Campers Online“. Dort bekam ich immer eine gute Beratung und die Preise stimmten ;-).

Das Wasserfiltersystem ist über einen Absperrhahn vom Hauptwassersystem abgetrennt und wird nur in Betrieb genommen, wenn wir auch tatsächlich das Wasser filtern wollen. Aus diesem Grund habe ich auch lediglich an das Spülbecken einen zweiten Wasserhahn für das gefilterte Wasser verlegt. Auf Reisen nach Island, Skandinavien und Südeuropa  werden wir das Wasser nicht filtern. Dieses hat den Vorteil, dass man nicht alle 1-2 Jahre die Wasserfilterpatronen wechseln muss, sondern nur, wenn es wirklich erforderlich ist, da man in Regionen gereist ist, wo das Wasser gefiltert werden musste.

Wasserrohrsystem:

 Aufgrund des Kabinenbaus der Firma Exploryx kann man die gesamte Wasserinstallation im doppelten Boden des Fahrzeugs unterbringen. Damit die Wasserrohre im Winter nicht einfrieren, habe ich ein zusätzliches Heizungsrohr in den Zwischenboden gelegt, dass im Heizungsbetrieb das Rohrsystem vor dem Einfrieren sichert. So gibt es auch gleich eine angenehme Fußbodenheizung. Um das Wasser im Winter ablassen zu können, habe ich vier Ablasshähne in das Rohrsystem eingebaut, um geplatzte Wasserleitungen möglichst verhindern zu können.

Zunächst galt es erst einmal sich für ein Wasserrohrsystem incl. der entsprechenden Verpressung zu entscheiden. Die Wasserschlauchvariante kam dabei nicht in Betracht, da ich gerne wie bei einer Hausinstallation ein ordentliches Rohrsystem verlegen wollte. Entschieden habe ich mich letztendlich für das Raxofix System in 15mm von der Firma Viega. Um die Anschlüsse zu verpressen konnte ich mir eine Rems Presse mit dem entsprechenden Presssystem für Raxofix leihen. Für die Biegung der Rohre habe ich ebenfalls von der Firma Rems eine professionelle Rohrbiegemaschine benutzt. Auf diese könnte man ggf. auch verzichten, da die Rohre auch recht leicht von Hand zu biegen sind.   Das am weitesten Schwierigste war allerdings entsprechende Wasserhähne zu finden, die ich mit dem Rohrsystem verbinden konnte. Die meisten Wasserhähne aus dem Reisemobilbedarf haben einen Schlauchanschluss und bestehen zu einem Großteil aus Plastik. Ich wollte aber richtige Haushaltsarmaturen, die allerdings nicht allzu groß / klobig sein sollten.  

 

Letztendlich benutzt habe ich folgende Armaturen:                   

2 kurze Wasserhähne - im Badezimmer und für das Wasserfiltersystem (hierbei war mir wichtig, dass sich die Hähne drehen lassen): Firma Lilie, Einhebelmischer kurz, Bestell Nr. 14823, zu beziehen über die Firma Campers Online

1 langer Wasserhahn für das Spülbecken: Firma Lilie, Einhebelmischer lang, Bestell Nr. 14821, zu beziehen über die Firma Campers Online
Auftischarmaturen für die Dusche im Badezimmer und die Außendusche: Reich, Einhebelmischer Auftisch Charisma AT (hier sollte man ein wenig googlen, da es enorme Preisunterschiede gibt... ansonsten kann man sie u.a. über die Firma Frankana beziehen.

 

Achtung: Bei den Auftischarmaturen für die Duschen muss man die Schlauchanschlüsse von den Kupferrohren abschneiden und mit Schneidringverschraubungen arbeiten.

Das ganze Thema Wasserinstallation ist extrem nervig – ich weiß nicht wie häufig ich im Sanitär Großhandel gewesen bin, um weitere Teile zu kaufen, oder falsch gekaufte zurück zu bringen. Wenn es dann aber erst einmal fertig ist, sieht es nach gar nicht so viel Arbeit aus....

Innenansicht leer Anfänge des Wassersystem und Montage der Oberschränke Wasserrohrsystem und Heizungsrohre Komplette Wasserverteilung incl. Ablasshähne


Heizungsinstallation:

Beim Thema Heizung stellt sich zuerst die Frage: Gas- oder Dieselheizung. Es gibt für jeden Heizungstyp Pro & Contra Argumente. Wir haben uns letztendlich für eine Dieselheizung incl. Warmwasserboiler „Dualtop RHA 100“ der Firma Webasto entschieden, die wir mit gutem Support über die Firma Richter Standheizungen bezogen haben. Ausschlaggebend war die Unabhängigkeit von Gasfirmen, da es Diesel nahezu überall gibt und die Heizung nicht so empfindlich ist, wie ein Euro 5 Fahrzeug ;-).

Problematisch wird es aber beim Heizen in extremer Höhe (oberhalb von 2500m) was besonders bei Reisen nach Südamerika zu beachten ist. Hierfür haben wir uns ein Anpassungsgerät der Firma Exploryx einbauen lassen, dass bereits in Südamerika ausgiebig getestet worden ist. Den Einbau der Heizung und den Anschluss an den Dieseltank haben wir ebenfalls bei unserem Kabinenbauer machen lassen. Obwohl die Heizung auch unter dem Fahrzeug verbaut werden kann, haben wir sie im hinteren großen Stauraum verbauen lassen, da wir bei Fahrten durch Flüsse die Heizung nicht fluten / zerstören wollen. Im Fahrzeuginneren ist sie deutlich besser geschützt.

Die Verlegung der Heizungsrohre sollte aber in jedem Fall gut überlegt sein und vor dem Möbelbau erfolgen. Wir haben das Heizungsrohr der Firma Truma (72mm) benutzt, da dieses perfekt durch die Durchführungen im Zwischenrahmen passt. Insgesamt haben wir 4 Luftauslässe (3 in der Wohnkabine, 1 im Badezimmer) was nach ersten Testläufen völlig ausreichend ist.

Die Wasserrohre müssen mit einer 10mm Schneidringverschraubung an der Heizung befestigt werden.

Die gesamte Elektroverkablung incl. dem Höhenanpassungsgerät ist ebenfalls im Zwischenboden verschwunden.

 

Elektroinstallation:

Beim Thema Elektroinstallation betreten wir einen Bereich, der mir immer ein paar Sorgen gemacht. Ich bin nun mal nicht der Elektriker vor dem Herrn und war mir nicht sicher, ob ich mich mit dem Thema nicht übernommen habe. Manchmal kommt es aber alles anders, als man es erwartet hat und so stellte sich die Elektroinstallation als nicht so kompliziert heraus.

 

Was aber sind die harten Fakten:

  • Batterie von Victron Energie, Gel, 220Ah, 70kg (bezogen über Transwatt in Soest, die ich sehr empfehlen kann!!!!)

  • Ladegerät und Spannungswandler von Victron Energy, Easy Plus, Ladegerät 70A, Spannungswandler 1600 Watt, alles in einem Gehäuse incl. FI Schalter und drei abgesicherten 220V Stromkreisen (bezogen über Transwatt in Soest )

  • Solarzellen Lilie, 2 x 120 Watt

  • Generator Honda EU 10i

  • Batterieladegerät mit Spannung von der Starterbatterie Sterling, B2B

Nun stellt sich vermutlich der ein oder andere die Frage, warum nur eine Batterie? Beim Ausbau eines Expeditionsmobil spielt immer wieder das Gewicht eine Rolle. 70kg für 220Ah ist schon so einiges. Hinzu kommt, dass die Batterien nicht gerade billig sind und eine begrenzte Lebensdauer haben. Ein Generator wiegt 13 kg, hat eine deutlich längere Lebenszeit, kann bei Bedarf zu Hause gelassen werden und kann auch für andere Verwendungszwecke benutzt werden.

Einbauort:

Wenn wir schon beim Thema Gewicht sind, spielt auch der Einbauort der Batterie (70kg)  und des Wechselrichters incl. Batterieladegerät (11,7kg) eine Rolle. Um das Gewicht möglichst weit nach vorne zu bringen, habe ich beides unter den Kühlschank gebaut. Über dem Wechselrichter befindet sich das Sterling B2B Ladegerät, der Hauptschalter für die Versorgungsbatterie und die Sicherungen. Der Platz reicht völlig aus und die gesamte Elektrik liegt so dicht beieinander. Zur Verteilung habe ich zwei Reihenklemmen gewählt, die auf einer Erhöhung direkt im Eingangsbereich unter dem Fußboden ist. Der Fußboden ist über ein Scharnier leicht zu öffnen. Die Fotos zeigen das Ganze hoffentlich ein bisschen besser.

Steuerungstechnik:

Zur Steuerung der gesamten Technik habe ich von Philippi das Kontrollpanel STV 228 gewählt. 8 abgesicherte einzelne Stromkreise, Batterieanzeige, Wassertankanzeige, zwei freie Schalter (einen habe ich gewählt um ein bistabiles Trennrelais anzusteuern, dass als Hauptschalter funktioniert und eine 12 V Steckdose reichen für meine Bordelektrik meines Erachtens aus. Zusätzlich kann ich über ein Controlpanel den Easy Plus ansteuern und auch die Ladekapazität / Eingangsspannung regulieren, d.h. wenn auf einem Campingplatz nur 4 A aus dem Stromanschluss kommen, kann ich das Ladegerät so runter regeln, dass nicht gleich die Sicherung bei dem Campingplatzanschluss rausfliegt. Außerdem habe ich eine Gasfüllstandsanzeige, die mir sagt, wie viel Gas im Gastank ist.    

Den Schaltplan mit weiteren Angaben gibt es bei den Fotos.

 

Schaltplan der Elektrik Einbau des Easy Plus Fertige Elektroinstallation im Schrank rechts nebem der Tür Philippi Kontroll Panel, Steuerung Easy Plus & Gasfüllstandsanzeige

 

Folgende weitere Geräte habe benutzt:

Philippi STV 228
Philippi Shunt (Messwiderstand) SHA 300
Philippi Tauchrohrgeber TGW 400
Philippi Tauchrohrgeber TGW 500
Philippi Streifensicherungshalter SHD 1
Philippi Streifensicherung STS 35 A
Philippi Streifensicherung STS 300A
Philippi Hauptschalter FBH 12/300
Lumicoin LED Leuchte PLS 2,5
Lumicoin LED Leuchte PLE 3

 

Licht:

Beim Thema Licht haben wir komplett auf sparsame LEDs gesetzt. In der Decke haben wir 8 LEDs der Marke Lumicoin verbaut. Zusätzlich gibt es beim Tisch und im Bett 4 LED Leselampen. Die Lampen werden sowohl über die Firma Philippi oder Frankana und andere verkauft. Wer richtig sparen will, bestellt sie über die Firma / Hersteller Lumicoin direkt ;-)
Kühlschrank:

Beim Kühlschrank war die Entscheidung eigentlich recht einfach – es sollte definitiv ein Kompressorkühlschrank und kein Gaskühlschrank werden. Nach längerer Recherche haben wir uns für den Kühlschrank KB 130 ENI der Firma Kissmann entschieden. Uns ist es wichtig einen großen Kühlschrank incl. eines möglichst großen Gefrierfaches zu haben. So kann man nicht nur ausreichend Getränke kühlen, sondern auch Fleisch und Fisch einfrieren und für längere Zeit haltbar machen.

 

Werkzeug für die Elektroinstallation:

Voraussetzung für eine ordentliche Installation ist wie so häufig gutes Werkzeug. Eine gute Zange für die Verquetschung von Kabelendhülsen kann ich nur empfehlen (ich habe eine Zange von Gedore entschieden mit der ich durch Austausch der Presseinsätze Kabelschuhe und Kabelendhülsen verpressen kann). Außerdem ist eine ordentliche Zange zum Abisolieren der Kabel (ebenfalls Gedore) auch sehr hilfreich.

 

Gasinstallation:

Da wir gerne einen Backofen zum Brot-, Brötchen- und Kuchenbacken haben wollen, musste als auch ein Gastank unter das Auto. Unser Kabinenbauer (Firma Exploryx) hat uns einen 20l (8kg Füllgewicht) Gastank unter das Auto gebaut. Leider passt kein größerer Gastank, was uns schon sehr geärgert hat....

Beim Thema Kochen haben wir sehr lange überlegt – Gas- oder Dieselkocker? Da uns mehrfach vom Dieselkocher aufgrund der langen Startzeit und des hohen Stromverbrauchs abgeraten worden ist, haben wir uns für einen zweiflammigen Gaskocher der Firma SMEV entschieden.

So mussten also Gasrohre vom Gastank hin zum Kocher und Backofen incl. eines Absperrhahnes verlegt werden. Sehr hilfreich dabei war das Rohrbiegegerät, denn 8mm Gasrohr biegt man nicht mal eben schnell per Hand.... Die gesamte Gasinstallation gestaltete sich daher recht einfach. Auch die Abnahme der Gasanlage incl. Dichtigkeitsprüfung war kein Problem.

 

Möbelbau:

Nachdem alle technischen Installationen weitestgehend abgeschlossen bzw. vorbereitet waren, begann ich mit dem Bau der Möbel. Wir hatte uns für mit weißem HPL (miniperl) beschichtetes Pappelsperrholz (15mm Pappelsperrholz, 0,8mm HPL pro Seite macht ein Gesamtstärke von 16,8mm) entschieden. Die Fronten der Möbel sollten mit Pappelsperrholz und Teak Furnier belegt werden, um einen warmen, angenehmen Ton zu bekommen.

Beim Thema Möbelbau ist man mit seinen Heimwerkerwerkzeugen (Stichsäge und Co.) ganz schnell am Ende. Zumindest der genaue Zuschnitt der Platten, das Furnieren mit Echtholz und auch das professionelle Lackieren müssen in einer Tischlerei erfolgen. An dieser Stelle möchte ich mich ganz herzlich bei der Tischlerei Kröger und insbesondere bei der Tischlermeisterin Doro bedanken, die mich super toll unterstützt haben....

Um es gleich vorweg zu nehmen – während ich den Aufwand der technischen Installationen weitestgehend richtig eingeschätzt habe, so habe ich den Aufwand für den Möbelbau deutlich unterschätzt. Da steckt weit mehr Arbeit drin, als ich erwartet hatte.

Nach dedn Oberschränken kamen die Sitzbänke Der Bau des Korpus vom Küchenblock Passt - der Küchenblock steht im Auto :-) Nach dem Küchenblock kam der Podest in der Sitzgruppe und der Fußboden - so langsam nimmt alles Form an.... Der Küchenblock ist verschraubt  - die Schubladen passen! Trotz ständigem Aufräumen herrscht immer wieder ganz schnell Chaos auf der Baustelle Die Bettkonstruktion ist fertig, die Küchenarbeitsplatte fest eingebaut. So langsam kann man sich vorstellen, wie es mal werden soll :-)
 

Oberschränke:

Ich begann also erst einmal mit dem Bau der Oberschränke. Die Platten waren fertig zugeschnitten und mit Umleimer belegt. Mit Hilfe einer Lamello Fräse (10er Lamellos) und großen Schraubzwingen war das eine Herausforderung, die leisten war. Mit Sikaflex 252i und etlichen Schrauben waren die Oberschränke schnell an die Decke gebracht. Die größte Herausforderung war der Bau des Küchenschranks.

 

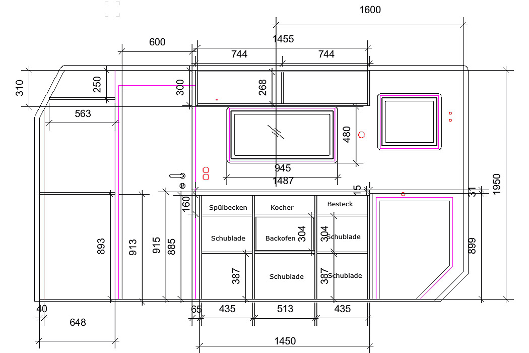
Küchenblock:

Nach Gesprächen mit Doro wurde mir schnell klar, dass ich den Schrank außerhalb des Autos bauen muss. So hatte ich die genauen Maße für die Platten berechnet und zuschneiden lassen. Den Schrank habe ich dann mit Doro gemeinsam gebaut. Während sie sich mit den 6 Schubladen beschäftigt hat, habe ich den Korpus gebaut. Besonders die Einpassung des Backofens gestaltete sich als nervig, da die tatsächlichen Außenmaße nicht den angegebenen entsprachen.

Große Irrwege haben wir bei der Wahl der Küchenarbeitsfläche beschritten. Das zunächst ausgesuchte HPL sah so in Natura hässlich aus, dass wir uns nach langem hin und her für ein anderes (HPL Getalit FM 137) entschieden haben, dass uns sehr gut gefällt. Die Arbeitsplatte hat eine Stärke von 30mm und rund herum eine Teakleiste. Auch der Tisch ist mit dem gleichen Material belegt worden.

 

Sitzbänke:

Die Sitzbänke wurden komplett aus Teak gebaut. In der vorderen Sitzbank befindet sich der 185 Liter Wassertank, in der hinteren Sitzbank das Wasserfiltersystem und ganz viel Stauraum, wo wir u.a. das Bettzeug verstauen werden, da wir nicht ständig im Schlafzimmer wohnen wollen ;-). Zwischen den Bänken befindet sich ein Podest, der als Staufach für die Fotoausrüstung genutzt werden kann. Außerdem hat ein Tresor, der fest mit dem  Auto verschraubt ist, darin Platz gefunden. Verriegelt wird das Fach durch einen 12mm Alustab, der durch das Staufach in den Fußboden geschoben wird. Da muss man schon wissen, wie man den Fußboden unter dem Tisch hoch bekommt ;-).

 

Fußboden:

Was aber kommt auf den Fußboden? Der Fußboden soll auch mit Straßenschuhen begehbar sein. Holz kam daher nicht in Frage. Letztendlich haben wir uns für einen Industrieboden der Firma Norament (NORAMENT 926 Grano 4899) entschieden, der laut Herstellerangaben sehr robust sein soll. In den Fußboden habe ich drei Revisionsklappen gebaut, so dass wir problemlos an die Wasserverteilung, den Absperrhahn für den Wasserfilter und die Reihenklemmen der Elektroinstallation kommen. Auch der Stauraum wurde mit dem gleichen Material belegt.

 

Schrank neben der Tür:

In den Schrank neben der Tür wurde im unteren Bereich die gesamte Elektronik (Batterie, Easy Plus (Victron Energy), Batterieladegerät B2B (Sterling), die gesamten Sicherungen und der Hauptschalter eingebaut. Darüber kommt eine große Schublade für die Schuhe und eine Schublade für die ganze Technik incl. drei 220V Steckdosen zum Laden der Akkus und Laptops.

Ganz wichtig ist uns ein großer Kühlschrank – wir haben das Modell KB 130 ENI der Firma Kissmann eingebaut, der ein recht großes Gefrierfach hat.

Ganz oben ist eine Klappe für die gesamte Steuerungstechnik (Philippi STV 228, Kontrollpanel für das Easy Plus und Füllstandsanzeige des Gastanks).

Besonders der Einbau der Schubladen als auch des Kühlschranks gestalteten sich nicht ganz einfach, da die Trennwand der Duschkabine nicht ganz parallel mit der der Außenwand war.

 

Bett:

Beim Bett haben wir uns für ein Ausziehvariante mit dem "Froli System" entschieden. Damit alles gut und leicht gleitet, liegt auf dem Staufach eine glatte HPL Platte. Alle anderen Teile der Konstruktion sind ebenfalls mit glattem HPL beschichtet. Als Trägermaterial habe ich diesmal Multiplex Platten gewählt, damit die Konstruktion stabil wird und nicht die Schrauben ausreißen. Der ausziehbare Teil ist mit einem 2mm Aluwinkel verbunden auf den aus Teak / Multiplex eine Blende geschraubt ist.

Konstruktionsbedingt ist die hintere Matratze 9cm stark und die vordere 10cm. Wir haben normalen Schaumstoff gewählt, da dieser deutlich leichter als Kaltschaummatratzen ist und für Kaltschaum eine Höhe von 14cm erforderlich ist, was uns zuviel ist.

Blick auf die Sitzgruppe incl. Durchgang ins Fahrerhaus Blick auf die Sitzgruppe incl. Durchgang ins Fahrerhaus Ausgezogenes Bett - 1,55 x 2,04m Bett im zusammengeschobenen Zustand Blick nach vorne... Blick nach hinten... Badezimmer - klein, aber fein.... Das komplette Badezimmer - die Dusche befindet sich vor der Toilette! Badezimmer mit Blick nach draußen ;-) Blick nach hinten... Sitzgruppe Die Schaltzentrale - das Führerhaus... :-)

Der Ausbau ging sehr viel schneller, als ich gedacht habe. Bereits Mitte Februar, nach 2 1/2 Monaten, war unser "Traum" soweit fertig, dass wir Anfang März bereits für 1 Woche mit dem Daily verreisen konnten.

Inzwischen haben wir 6500km auf dem Tacho und bereits viele nette Stunden in und mit unserem Autochen verbracht. Im Sommer geht es auf eine längere Testfahrt nach Nord-Norwegen.

Ein paar nette Bilder gibt es auch in unser Galerie!